Ausdruck der Webseite von http://www.floss.de
Stand
: Donnerstag, 15. Januar 2026 um 22:33 Uhr
Sie sind hier
:
Wirtschaft
Bauleitplanung
Wirtschaft
Bauleitplanung
Navigation
Home
Rathaus
Rathaus Allgemein
Wegweiser
Bürgermeister
RIS / Marktrat / Gremien
Steuer- / Abgabesätze
Kommunalbetrieb
Online Dienste
Manöverschäden
Newsarchiv
Satzungen / Verordnungen
Stellenausschreibung
Pachtflächen
Bekanntmachungen
Marktinfos
Marktinfos Allgemein
Links
Geschichte
Vereine & Verbände
Wahlen
Jagdgenossenschaften
Familie & Soziales
ÖPNV / Verkehr
Floß erleben
Kindergärten & Schulen
Veranstaltungen
Unterkünfte
Tourismus
Ortsplan
Kultur & Kirche
Ferienprogramme
Wirtschaft
Wirtschaft Allgemein
Branchenbuch
Bauleitplanung
Städtebauförderung
Flächennutzungsplan
Bauleitplanung
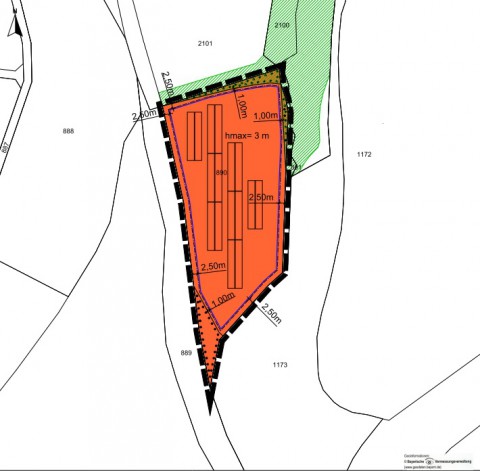
Photovoltaik Hohe Trat
Deckblatt_Flächennutzungsplan 17. Änderung.pdf Flächennutzungsplan...
Im Wiesengrund
Bebauungsplan Im Wiesengrund.pdf
Am Zehenthof
Urfassung Bebauungsplan Am Zehenthof.pdf FESTSETZUNGEN.pdf 1. Änderung 1. Änderung - BPlan Am Zehenthof.pdf 2....
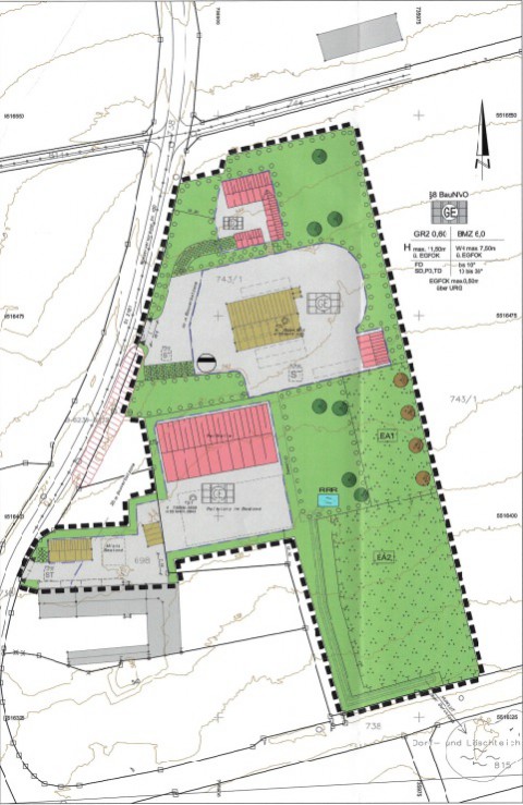
Mischgebiet "Am Mitterweg"
Urfassung Bekanntmachung Bebauungsplan Mischgebiet Am Mitterweg.pdf Verbindlicher Bauleitplan Am Mitterweg.pdf 1....
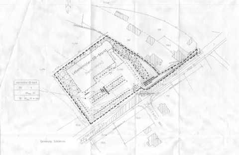
"Netto-Markt Weidener Straße"
Bekanntmachung vorhabenbezogener Bebauungsplan "Netto-Markt Weidener Str".pdf Vorhabenbezogener Bebauungsplan "Netto-Markt Weidener Str".pdf
Gewerbegebiet Ellenbach
Bekanntmachung 16. Änderung Flächennutzungsplan GE_Ellenbach.pdf 16....
Photovoltaikanlage bei Floß
13. Änderung des Flächennutzungsplan.pdf Bekanntmachung 13. Änderung des Flächennutzungsplan.pdf Bebauungsplan SO Photovoltaikanlage...
Solarpark Klärwerk Floß
Bekanntmachung Bebauungsplan Solarpark Klärwerk Floß.pdf Bebauungsplan Solarpark Klärwerk Floß.pdf Bekanntmachung 11. Änderung...
Wochenendhausgebiet Steinfrankenreuth
Bebauungsplan Wochenendhausgebiet Steinfrankenreuth
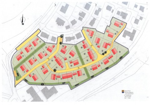
Baugebiet "Am Sonnenhang"
Lage des Baugebietes: Das Neubaugebiet liegt am nord-westlichen Ortsrand des Marktes in einer sonnigen Hanglage. Deshalb wurde dem neuen Baugebiet...
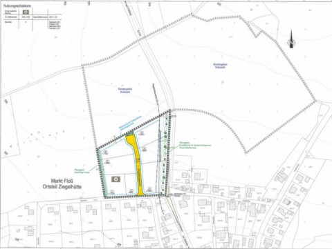
Baugebiet "Am Bockl Radweg"
Unterlagen für die 14. Änderung des Flächennutzungsplanes und Aufstellung des Bebauungsplanes "Am Bockl-Radweg" - Bekanntmachung...
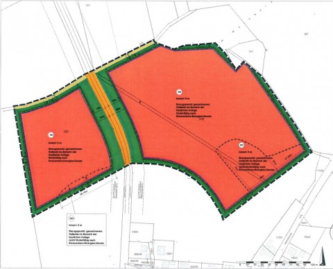
Solarpark Floß
Vorhabenbezogener Bebauungsplan "Solarpark_Floss" Bekanntmachung: Vorhabenbezogener Bebauungsplan...
Photovoltaik Diepoltsreuth
Flächennutzungsplanänderung Nr. 8 "Photovoltaik Diepoltsreuth Bekanntmachung: Flächennutzungsplanänderung Nr. 8 "Photovoltaik...
Photovoltaik Diepoltsreuth II
Bekanntmachung 15. Änderung FNP.pdf 15. Änderung des FNP.pdf Bekanntmachung Bauleitplanung Photovoltaik Diepoltsreuth...
Markt Floß
Rathausplatz 3
92685 Floß
Tel. +49 (0) 9603 / 92 11 - 0
Fax. +49 (0) 9603 / 92 11 - 50
poststelle@floss.de
Öffnungszeiten
Täglich von 08:00 Uhr - 12:00 Uhr
Donnerstag von 13:30 Uhr - 17:30 Uhr
Terminvereinbarungen möglich
Kontakt
Impressum
Datenschutz
Zugangseröffnung
© 2026 - Markt Floß
© 2026
Markt Floß